Property Details
Occupying the lower ground floor of a row of Victorian Gothic-style terraces dating to the late 1800s, this oversized architect-designed apartment combines historic charm with contemporary ease. Originally designed by owner-architect Thomas Rowe (who also designed Sydney Hospital), this iconic residence was once part of the Orwell Estate. The heritage significance of the strata plan's buildings was later preserved by the famous Green Bans of the 1970s, instigated by Jack Mundey and Juanita Nielsen.
Reimagined by the multi-award-winning Brad Swartz Architects, the residence now enjoys private street access, soaring ceilings and panoramic Domain-to-city views that frame St Mary's Cathedral and Sydney Tower. A calm, minimalist interior palette enhances the building's heritage proportions while fluid indoor/outdoor flow delivers everyday liveability. Positioned on one of Potts Point's signature tree-lined streets, the home offers an elegant link between the suburb's rich architectural history and its vibrant dining and cultural scene - just moments to the CBD, harbour foreshores and Macleay Street village.
- Architect-designed renovation by Brad Swartz Architects
- Grand Victorian terrace row c.1880s with private street entry
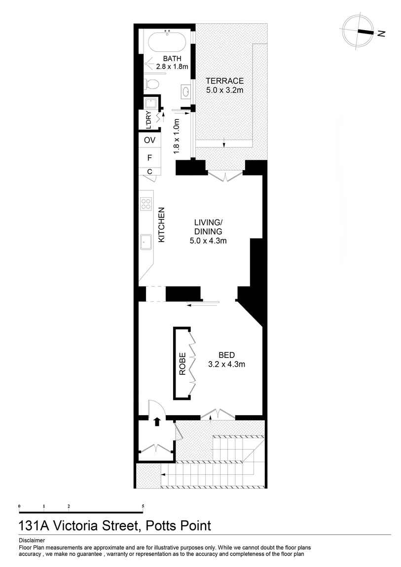
- Approx. 73sqm - oversized one-bedroom floorplan
- Freestanding main kitchen unit complemented by full-height cabinetry
- Premium German appliances
- Internal laundry, bath, American Oak timber floors
- Panoramic Domain & skyline views including St Mary's Cathedral
- Approx. 3.6m ceilings enhancing light and volume
- King bedroom, Bespoke freestanding robe
- Huge sunlit terrace for entertaining
- Refined minimalist material palette + quality joinery
- Surrounded by top cafes, dining, harbour walks & transport
- Stroll to the CBD and Finger Wharf
Approximate outgoings
Strata levies: $1,666 pq
Water rates: $213 pq
Council rates: $318 pq
Building size
73 sqm (approx)








































